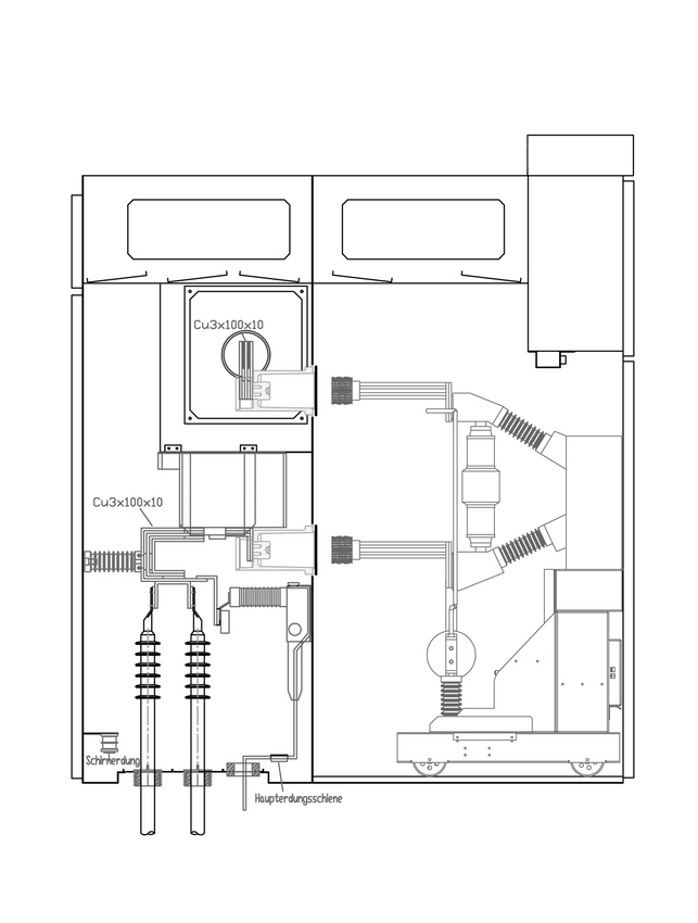
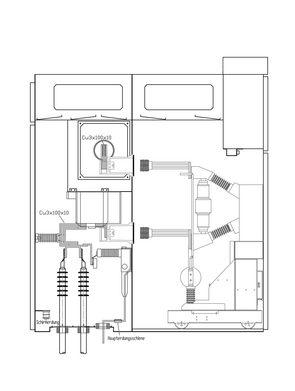
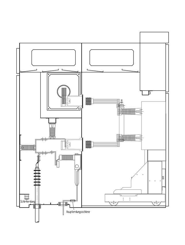
Bahnschaltanlagen 16,7 Hz
Allgemeine Merkmale
Luftisoliert, Einfachsammelschiene:
- Metallgekapselt
- Schaltgeräte in Einschubtechnik
- Abzweiggebundene Prüfeinrichtung (AGP)
- Schottungskonzept:
- Sammelschienenraum
- Leistungsschalterraum
- Kabelanschlussraum
- Niederspannungsraum
- Störlichtbogenqualifikation IAC AFLR 40 kA/0,5 s
- Schottungsklasse PM
- Betriebsverfügbarkeit LSC 2B / PM
- Schutzgrade:
- Kapselung und NS-Nische IP 4x
- Innere Schottungen IP 2x



