Netz- & Verteilschaltanlagen bis 40,5 KV
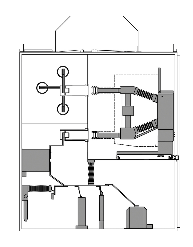
Allgemeine Merkmale
- Metallgekapselt
 - Vakuum-Leistungsschalter in Einschubtechnik
 - Schottungskonzept: 
- Sammelschienenraum
 - Leistungsschalterraum
 - Kabelanschlussraum
 - Niederspannungsraum
 
 - Betriebsverfügbarkeit LSC 2B
 - Störlichtbogenqualifikation IAC AFLR bis 31,5 kA/1 s
 - Schutzgrade: 
- Kapselung und NS-Nische IP 4x
 - Innere Schottungen IP 2x
 
 - Kabelboden/Doppelbodenbereich metallgeschottet
 - Schottung zwischen Leistungsschalterraum und Kabelanschlussraum zur besseren Kabelmontage einfach zu demontieren
 - Leistungsschalter und Erdungsschalter optional mit elektromotorischer Verfahrung
 
| Bemessungswerte | ||||||||
|---|---|---|---|---|---|---|---|---|
| Typ / Spannung | M11 / 36 kV | M11 / 40,5 kV | ||||||
| Strom / Sammelschiene | ...3150 A | ...3150 A | ||||||
| Strom / Abgänge | ...2500 A | ..2500 A | ||||||
| Kurzzeitstoßstrom | ...31,5 kA | ...31,5 kA | ||||||
| Stoßstrom | ...80 kA | ...80 kA | ||||||
| Stehwechselspannung | 70 kV | 85 kV | ||||||
| Blitzstoßspannung | 170 kV | 185 kV | ||||||
| Abmessungen | ||||||||
|---|---|---|---|---|---|---|---|---|
| Typ / Spannung | M11 / 36 kV | M11 / 40,5 kV | ||||||
| Höhe (mm) | 2500 | 2500 | ||||||
| Breite (mm) | 1500 | 1500 | ||||||
| Tiefe (mm) | 2200 | 2200 | ||||||
 
 Luftisoliert, Einfachsammelschiene:
- Sehr kompakte Bauweise bei 36 kV
 - Schottungsklasse PI
 - Zugänglichkeit zum Kabel von hinten
 - Hoher Kabelanschlussraum
 - Optional Spannungswandler auf Einschub
 
| Bemessungswerte | |||||||
|---|---|---|---|---|---|---|---|
| Typ / Spannung | M16 / 36 kV | ||||||
| Strom / Sammelschiene | ...2500 A | ||||||
| Strom / Abgänge | ...2500 A | ||||||
| Kurzzeitstoßstrom | ...31,5 kA | ||||||
| Stoßstrom | ...80 kA | ||||||
| Stehwechselspannung | 70 kV | ||||||
| Blitzstoßspannung | 170 kV | ||||||
| Abmessungen | |||||||
|---|---|---|---|---|---|---|---|
| Typ / Spannung | M16 / 36 kV | ||||||
| Höhe (mm) | 2500 | ||||||
| Breite (mm) | 1000 | ||||||
| Tiefe (mm) | 2100 / 2300 | ||||||



