Netz- & Verteilschaltanlagen bis 24 KV
Allgemeine Merkmale
- Metallgekapselt
- Schottungsklasse PM
- Schutzgrade:
- Kapselung und NS-Nische IP 4x
| Bemessungswerte | ||||||||||
|---|---|---|---|---|---|---|---|---|---|---|
| Typ / Spannung | M9 / 7,2 kV | M9 / 12 kV | M9 / 17,5 kV | M9 / 24 kV | ||||||
| Strom / Sammelschiene | ...1250 A | ...1250 A | ...1250 A | ...1250 A | ||||||
| Strom / Abgänge | ....1250 A | ...1250 A | ...1250 A | ...1250 A | ||||||
| Kurzzeitstoßstrom | ...31,5 kA | ...31,5 kA | ...31,5 kA | ...72 kA | ||||||
| Stoßstrom | ...80 kA | ...80 kA | ...80 kA | ...63 kA | ||||||
| Stehwechselspannung | 20 kV | 28 kV | 38 kV | 50 kV | ||||||
| Blitzstoßspannung | 60 kV | 75 kV | 50 kV | 125 kV | ||||||
| Abmessungen | ||||||||||
|---|---|---|---|---|---|---|---|---|---|---|
| Typ / Spannung | M9 / 7,2 kV | M9 / 12 kV | M9 / 17,5 kV | M9 / 24 kV | ||||||
| Höhe (mm) | 2000 | 2000 | 2000 | 2000 | ||||||
| Breite (mm) | 650 / 800 / 1000 | 650 / 800 / 1000 | 800 / 1000 | 800 / 1000 | ||||||
| Tiefe (mm) | 950 | 950 | 1200 | 1200 | ||||||
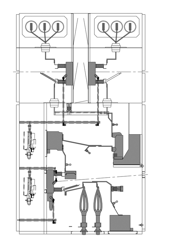
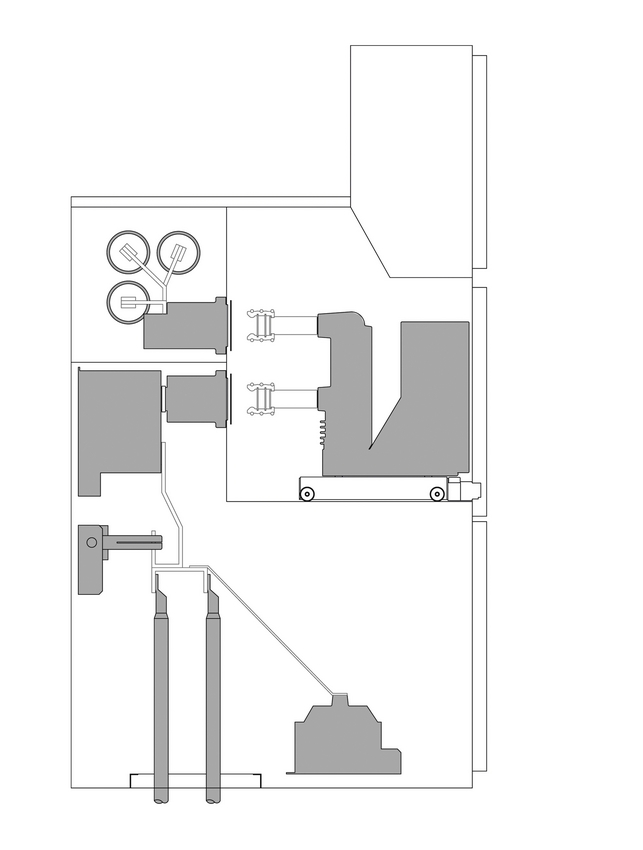
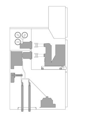
Luftisoliert, Einfachsammelschiene:
- Sehr kompakte Bauweise
- Schaltgeräte in Festeinbau- oder Einschubtechnik
- Schottungskonzept:
- Sammelschienenraum
- Leistungsschalterraum
- Kabelanschlussraum
- Niederspannungsraum
- Betriebsverfügbarkeit:
- Festeinbautechnik LSC 2A
- Einschubtechnik LSC 2B
- Störlichtbogenqualifikation IAC AFLR bis 31,5 kA/1 s
- Schottungsklasse PM (12 kV), PI (17,5 kV)
- Schutzgrade:
- Innere Schottungen IP 2x
- Optional typgeprüfter Druckentlastungskanal
| Bemessungswerte | |||||||||
|---|---|---|---|---|---|---|---|---|---|
| Typ / Spannung | M13 / 7,2 kV | M13 / 12 kV | M13 / 17,5 kV | ||||||
| Strom / Sammelschiene | ...2000 A | ...2000 A | ...2000 A | ||||||
| Strom / Abgänge | ....1250 A | ...1250 A | ...1250 A | ||||||
| Kurzzeitstoßstrom | ...31,5 kA | ...31,5 kA | ...31,5 kA | ||||||
| Stoßstrom | ...80 kA | ...80 kA | ...80 kA | ||||||
| Stehwechselspannung | 20 kV | 28 kV | 38 kV | ||||||
| Blitzstoßspannung | 60 kV | 75 kV | 95 kV | ||||||
| Abmessungen | |||||||||
|---|---|---|---|---|---|---|---|---|---|
| Typ / Spannung | M13 / 7,2 kV | M13 / 12 kV | M13 / 17,5 kV | ||||||
| Höhe (mm) | 2100 | 2100 | 2100 | ||||||
| Breite (mm) | 600 | 600 | 600 | ||||||
| Tiefe (mm) | 1150 | 1150 | 1150 | ||||||
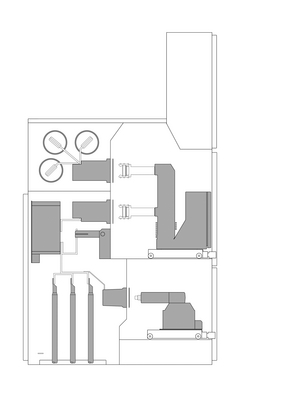
Luftisoliert, Einfachsammelschiene:
- Sehr kompakte Bauweise
- Zugang zum Kabelanschlussraum durch Tür von hinten
- Metallgekapselt
- Schaltgeräte in Festeinbau- oder Einschubtechnik
- Schottungskonzept:
- Sammelschienenraum
- Leistungsschalterraum
- Kabelanschlussraum
- Niederspannungsraum
- Betriebsverfügbarkeit:
- Festeinbautechnik LSC 2A
- Einschubtechnik LSC 2B
- Störlichtbogenqualifikation IAC AFLR bis 40 kA/1 s
- Schottungsklasse PM
- Schutzgrade:
- Innere Schottungen IP 2x
- Optional typgeprüfter Druckentlastungskanal
| Bemessungswerte | |||||||||
|---|---|---|---|---|---|---|---|---|---|
| Typ / Spannung | M18 / 7,2 kV | M18 / 17,5 kV | M18 / 24 kV | ||||||
| Strom / Sammelschiene | ...2500 A | ...2500 A | ...1250 A | ||||||
| Strom / Abgänge | ....2500 A | ....2500 A | ...1250 A | ||||||
| Kurzzeitstoßstrom | ...40 kA | ...40 kA | ...25 kA | ||||||
| Stoßstrom | ...100 kA | ...100 kA | ...63 kA | ||||||
| Stehwechselspannung | 28 kV | 38 kV | 50 kV | ||||||
| Blitzstoßspannung | 75 kV | 95 kV | 125 kV | ||||||
| Abmessungen | |||||||||
|---|---|---|---|---|---|---|---|---|---|
| Typ / Spannung | M18 / 7,2 kV | M18 / 17,5 kV | M18 / 24 kV | ||||||
| Höhe (mm) | 2200-2800 | 2200-2800 | 2200-2800 | ||||||
| Breite (mm) | 650 / 800 / 1000 | 800 / 1000 | 800 / 1000 | ||||||
| Tiefe (mm) | 1385 | 1385 | 1385 | ||||||
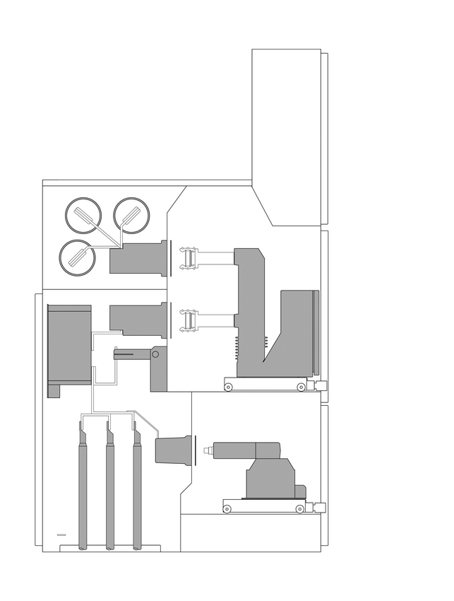
Luftisoliert, Einfachsammelschiene:
- Schaltgeräte in Einschubtechnik
- Schottungskonzept:
- Sammelschienenraum
- Leistungsschalterraum
- Kabelanschlussraum
- Wandlerraum bei Duplex
- Niederspannungsraum
- Betriebsverfügbarkeit:
- Einschubtechnik LSC 2B
- Störlichtbogenqualifikation IAC AFLR bis 63 kA/1 s
- Schutzgrade:
- Innere Schottungen IP 2x
| Bemessungswerte | ||||||||||
|---|---|---|---|---|---|---|---|---|---|---|
| Typ / Spannung | M6 / 7,2 kV | M6 / 12 kV | M6 / 17,5 kV | M6 / 24 kV | ||||||
| Strom / Sammelschiene | ...4000 A | ...4000 A | ...4000 A | ...2500 A | ||||||
| Strom / Abgänge | ..4000 A | ..4000 A | ...3150 A | ...2500 A | ||||||
| Kurzzeitstoßstrom | ...63 kA | ...63 kA | ...40 kA | ...25 kA | ||||||
| Stoßstrom | ...160 kA | ...160 kA | ...100 kA | ...63 kA | ||||||
| Stehwechselspannung | 20 kV | 28 kV | 38 kV | 50 kV | ||||||
| Blitzstoßspannung | 60 kV | 75 kV | 95 kV | 125 kV | ||||||
| Abmessungen | ||||||||||
|---|---|---|---|---|---|---|---|---|---|---|
| Typ / Spannung | M6 / 7,2 kV | M6 / 12 kV | M6 / 17,5 kV | M6 / 24 kV | ||||||
| Höhe (mm) | 2250 | 2250 | 2250 | 2250 | ||||||
| Breite (mm) | 650 / 800 / 1000 | 650 / 800 / 1000 | 800 / 1000 | 800 / 1000 | ||||||
| Tiefe (mm) | 1300 / 2600 | 1300 / 2600 | 1300 / 2600 | 1300 / 2600 | ||||||
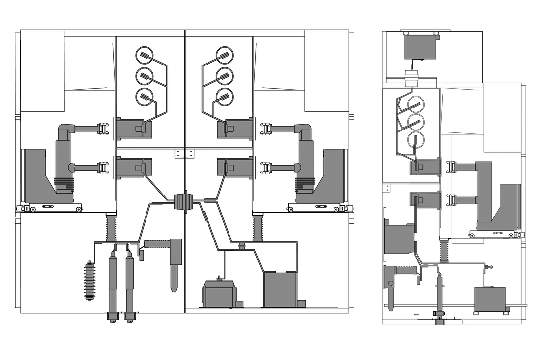
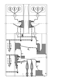
Luftisoliert, Doppelsammelschiene:
- Schaltgeräte in Festeinbau- oder Einschubtechnik
- Schottungskonzept Festeinbautechnik:
- 2 Sammelschienen-Trennschalterräume
- 2 Sammelschienenräume (Option)
- 1 Abgangsraum
- 1 Niederspannungsraum
- Schottungskonzept Einschubtechnik:
- 2 Sammelschienen-Trennschalterräume
- 2 Sammelschienenräume (Option)
- 1 Leistungsschalterraum
- 1 Kabelanschlussraum
- 1 Niederspannungsraum
- Betriebsverfügbarkeit:
- Festeinbautechnik LSC 2A
- Einschubtechnik LSC 2B
- Störlichtbogenqualifikation IAC AFLR bis 40 kA/1 s
- Schutzgrade:
- Innere Schottungen IP 2x
| Bemessungswerte | ||||||||||
|---|---|---|---|---|---|---|---|---|---|---|
| Typ / Spannung | M6 DSS / 7,2 kV | M6 DSS / 12 kV | M6 DSS / 17,5 kV | M6 DSS / 24 kV | ||||||
| Strom / Sammelschiene | ...3150 A | ...3150 A | ...2500 A | ...2500 A | ||||||
| Strom / Abgänge | ...2500 A | ...2500 A | ...2500 A | ...2500 A | ||||||
| Kurzzeitstoßstrom | ...40 kA | ...40 kA | ...25 kA | ...25 kA | ||||||
| Stoßstrom | ...80 kA | ...80 kA | ...63 kA | ...63 kA | ||||||
| Stehwechselspannung | 20 kV | 28 kV | 38 kV | 50 kV | ||||||
| Blitzstoßspannung | 60 kV | 75 kV | 95 kV | 125 kV | ||||||
| Abmessungen | ||||||||||
|---|---|---|---|---|---|---|---|---|---|---|
| Typ / Spannung | M6 DSS / 7,2 kV | M6 DSS / 12 kV | M6 DSS / 17,5 kV | M6 DSS / 24 kV | ||||||
| Höhe (mm) | 3000 | 3000 | 3000 | 3000 | ||||||
| Breite (mm) | 650 / 800 / 1000 | 650 / 800 / 1000 | 800 / 1000 | 800 / 1000 | ||||||
| Tiefe (mm) | 1750 | 1750 | 1750 | 1750 | ||||||



