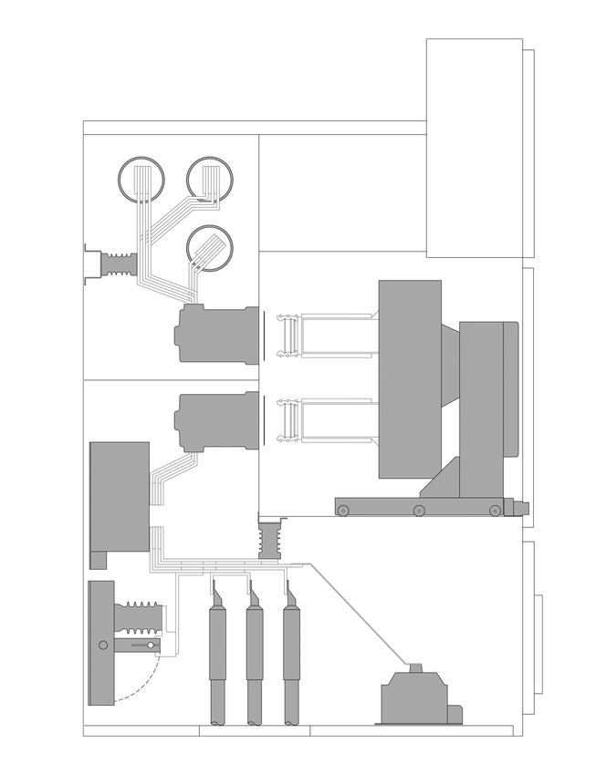
Generatorschaltanlagen bis 17,5 kV
Allgemeine Merkmale
- Metallgekapselt
 - Schottungsklasse PM
 - Schottungskonzept: 
- Sammelschienenraum
 - Leistungsschalterraum
 
 - Kabelanschlussraum
 - Niederspannungsraum
 - Schutzgrade: 
- Kapselung und NS-Nische IP 4x
 - Innere Schottungen IP 2x
 
 - Druckentlastungskanal
 
| Bemessungswerte | |||||||||
|---|---|---|---|---|---|---|---|---|---|
| Typ / Spannung | M6-G / 12 kV | M6-G / 15 kV | M6-G / 17,5 kV | ||||||
| Strom / Sammelschiene | ...5200 A | ...5200 A | ...5200 A | ||||||
| Strom / Abgänge | ...5200 A | ...5200 A | ...5200 A | ||||||
| Kurzzeitstoßstrom | ...72 kA | ...72 kA | ...72 kA | ||||||
| Stoßstrom | ...193 kA | ...193 kA | ...193 kA | ||||||
| Stehwechselspannung | 28 kV | 36 kV | 38 kV | ||||||
| Blitzstoßspannung | 75 kV | 95 kV | 95 kV | ||||||
| Abmessungen | |||||||||
|---|---|---|---|---|---|---|---|---|---|
| Typ / Spannung | M6-G / 12 kV | M6-G / 15 kV | M6-G / 17,5 kV | ||||||
| Höhe (mm) | 2400-2550 | 2400-2550 | 2400-2550 | ||||||
| Breite (mm) | 800/1000 | 1000 | 1000 | ||||||
| Tiefe (mm) | 1600 | 1600 | 1600 | ||||||
 
 Luftisoliert, Einfachsammelschiene:
- Schaltgeräte in Fahrwagentechnik
 - Betriebsverfügbarkeit: 
- Fahrwagentechnik LSC 2B
 
 - Störlichtbogenqualifikation IAC AFLR bis 63 kA/0,3 s
 
| Bemessungswerte | |||||||||
|---|---|---|---|---|---|---|---|---|---|
| Typ / Spannung | M12 / 12 kV | M12 / 15 kV | M12 / 17,5 kV | ||||||
| Strom / Sammelschiene | ...7000 A | ...7000 A | ...7000 A | ||||||
| Strom / Abgänge | ....7000 A | ...7000 A | ...7000 A | ||||||
| Kurzzeitstoßstrom | ...63 kA | ...63 kA | ...63 kA | ||||||
| Stoßstrom | ...160 kA | ...160 kA | ...160 kA | ||||||
| Stehwechselspannung | 28 kV | 36 kV | 38 kV | ||||||
| Blitzstoßspannung | 75 kV | 95 kV | 95 kV | ||||||
| Abmessungen | |||||||||
|---|---|---|---|---|---|---|---|---|---|
| Typ / Spannung | M12 / 12 kV | M12 / 15 kV | M12 / 17,5 kV | ||||||
| Höhe | 3000 | 3000 | 3000 | ||||||
| Breite | 1500 | 1500 | 1500 | ||||||
| Tiefe | 2200 | 2200 | 2200 | ||||||
 
 Luftisoliert, Einfachsammelschiene:
- Schaltgeräte in Fahrwagentechnik mit Motorantrieb
 - Betriebsverfügbarkeit: 
- Fahrwagentechnik LSC 2B
 
 - Störlichtbogenqualifikation IAC AFLR bis 72 kA/0,1 s bzw. 63 kA/0,5 s
 - Kompakte Bauweise bei hohen Strömen
 - Gute Zugänglichkeit zu allen Komponenten
 
| Bemessungswerte | |||||||||
|---|---|---|---|---|---|---|---|---|---|
| Typ / Spannung | M17 / 12 kV | M17 / 15 kV | M17 / 17,5 kV | ||||||
| Strom / Sammelschiene | ...5100 A | ...5100 A | ...5100 A | ||||||
| Strom / Abgänge | ....5100 A | ...5100 A | ...5100 A | ||||||
| Kurzzeitstoßstrom | ...72 kA | ...72 kA | ...72 kA | ||||||
| Stoßstrom | ...197 kA | ...197 kA | ...197 kA | ||||||
| Stehwechselspannung | 28 kV | 36 kV | 50 kV | ||||||
| Blitzstoßspannung | 75 kV | 95 kV | 110 kV | ||||||
| Abmessungen | |||||||||
|---|---|---|---|---|---|---|---|---|---|
| Typ / Spannung | M17 / 12 kV | M17 / 15 kV | M17 / 17,5 kV | ||||||
| Höhe | 2900 | 2900 | 2900 | ||||||
| Breite | 1200 | 1200 | 1200 | ||||||
| Tiefe | 2300 | 2300 | 2300 | ||||||



